Die Schulanlage Steig ist über mehr als hundert Jahre lang stetig gewachsen. Die in zwei Etappen gebaute Sekundarschule und die Realschule können die steigenden Schülerzahlen nicht mehr fassen. Zudem sollen die Real- und Sekundarschule auch betrieblich zu einer neuen Oberstufe zusammengeführt werden.
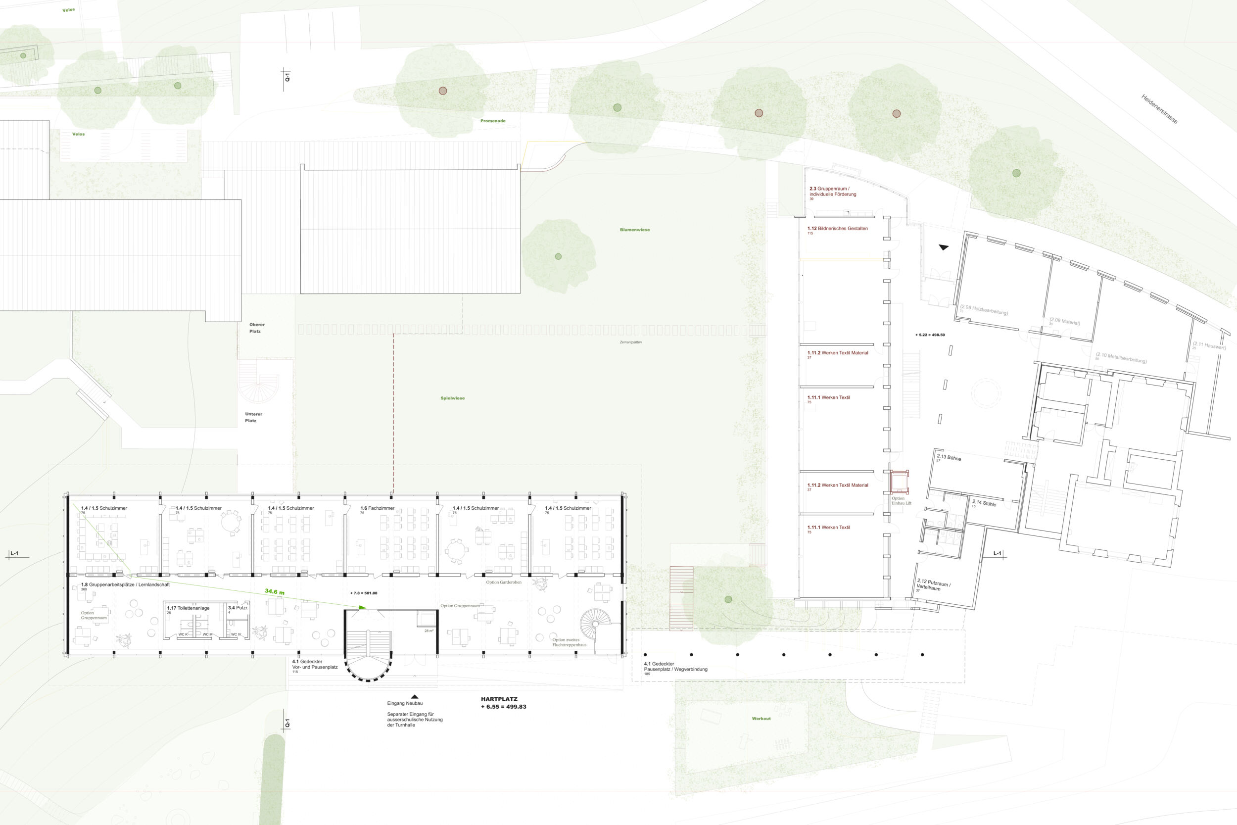
Die anspruchsvolle topografische Lage, welche südseitig zudem durch den Lärm der Autobahn beeinträchtig ist, hat zu einer weitläufigen und über viele Geschossebenen verteilten Schulanlage geführt. Das Projekt will die für den Ausbau der Schule vorhandenen Ressourcen für einen kompakten Neubau einsetzen. Dieser steht zwischen dem Hauptplatz im Süden und der Spielwiese im Norden, womit der Aussenraum künftig besser von Lärm geschützt ist.
Der neue Schultrakt der Oberstufe Steig ist ein einfaches, effizientes und positiv wirkendes Raumgefäss für die optimale Weiterentwicklung der Schulkultur. Ein Foyer, das die Aula und die Turnhalle verbindet, schafft ein neues innenräumliches Zentrum für unterschiedliche Veranstaltungen und Projekte der neuen Gesamtschule. Zudem werden die Arbeitsbereiche der Lehrpersonen zwischen der alten Real- und Sekundarschule an neuer Stelle zusammengefasst. Über der Turnhalle und dem Lehrerbereich liegen zwei Cluster mit je sechs nach Norden ausgerichteten Klassenzimmern. Diese bieten Lernlandschaften mit Ateliercharakter an.
Das neue Schulgebäude zielt auf optimalen Einsatz der Ressourcen. Die Positionierung in der Topografie führt zu wenig Aushub. Eine effiziente Tragstruktur zielt auf eine kostenoptimierte Erstellung. Mit der Nord-Süd-Ausrichtung kann der thermische Energiehaushalt auch ohne hochinstallierte Haustechnik über den gesamten Verlauf der Jahreszeiten effizient bespielt werden.














