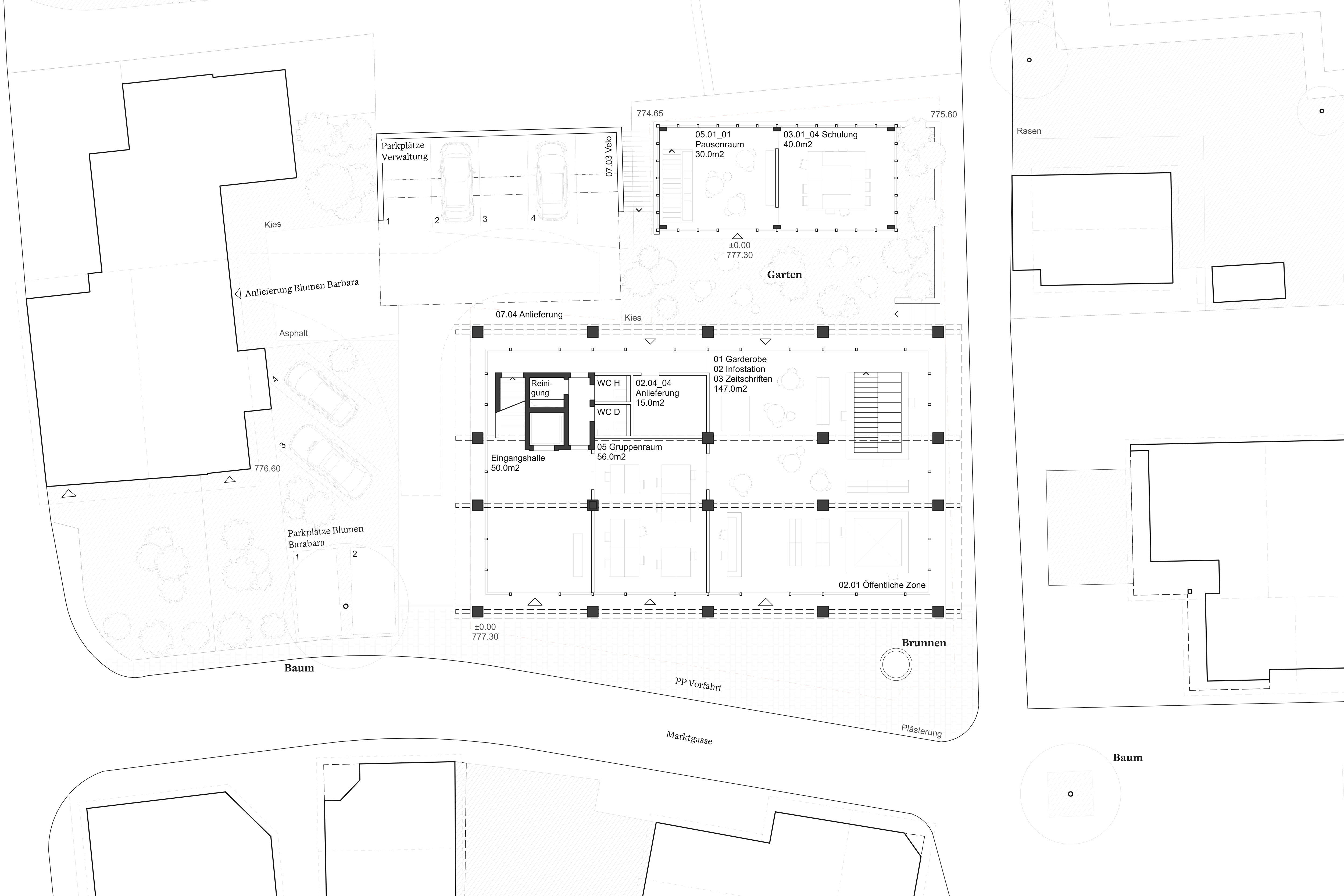
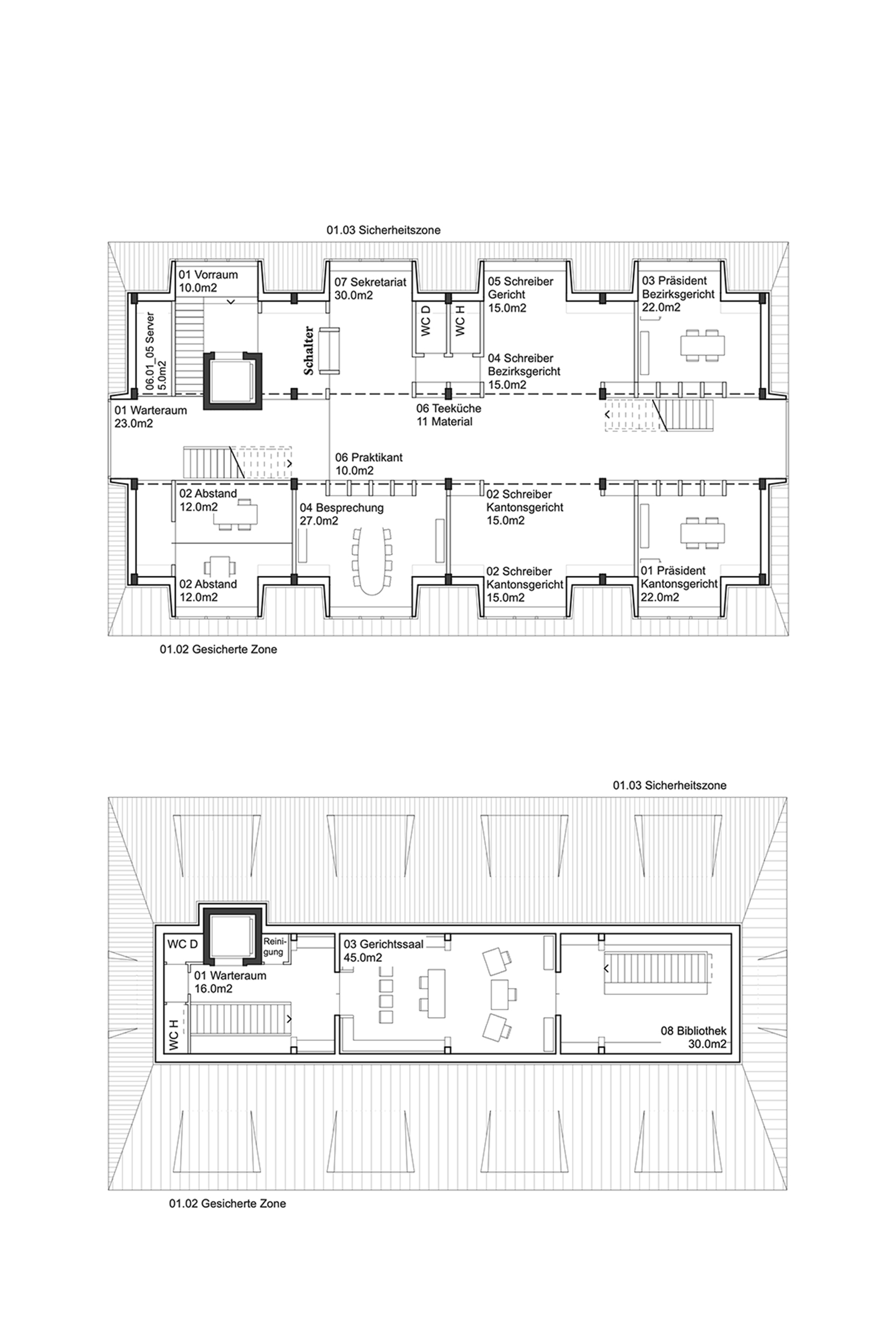
Das neue Verwaltungs- und Gerichtsgebäude in Appenzell ist ein Holzbaukörper, der auf dem offenen und steinig gehaltenen Erdgeschoss liegt. Dieses vermittelt als steinerne Säulenhalle mit Holzdecke zwischen dem Landesarchiv im mehrgeschossigen Keller und den Holzhäusern am Landsgemeindeplatz. Die Holzbaustruktur formuliert einen offenen und vielseitig adaptierbaren Verwaltungsbautypus, der mit einem breiten Mittelkorridor auch eine Kommunikationszone bereitstellt. Die Hauptnutzflächen entlang der Fassade sind mit einem kleinen Rastermass für flexible Raumeinteilungen rhythmisiert. Die Balkendecken nehmen diesen Rhythmus auf, sodass viel Abwicklung für die Wärmespeicherung aufgebaut werden kann. In der Fassade entsteht so das in Appenzell weit verbreitete gotische Fensterband. Das mit Holzschindeln eingekleidete Dach unterstützt mit seiner abgewalmten Sonderform den öffentlichen Charakter des Gerichts und bereichert als Haus in der zweiten Reihe die Silhouette des Landsgemeindeplatzes.









