Thomas K. Keller
Thomas K. Keller
Architekt:innen
Architekt:innen
2101
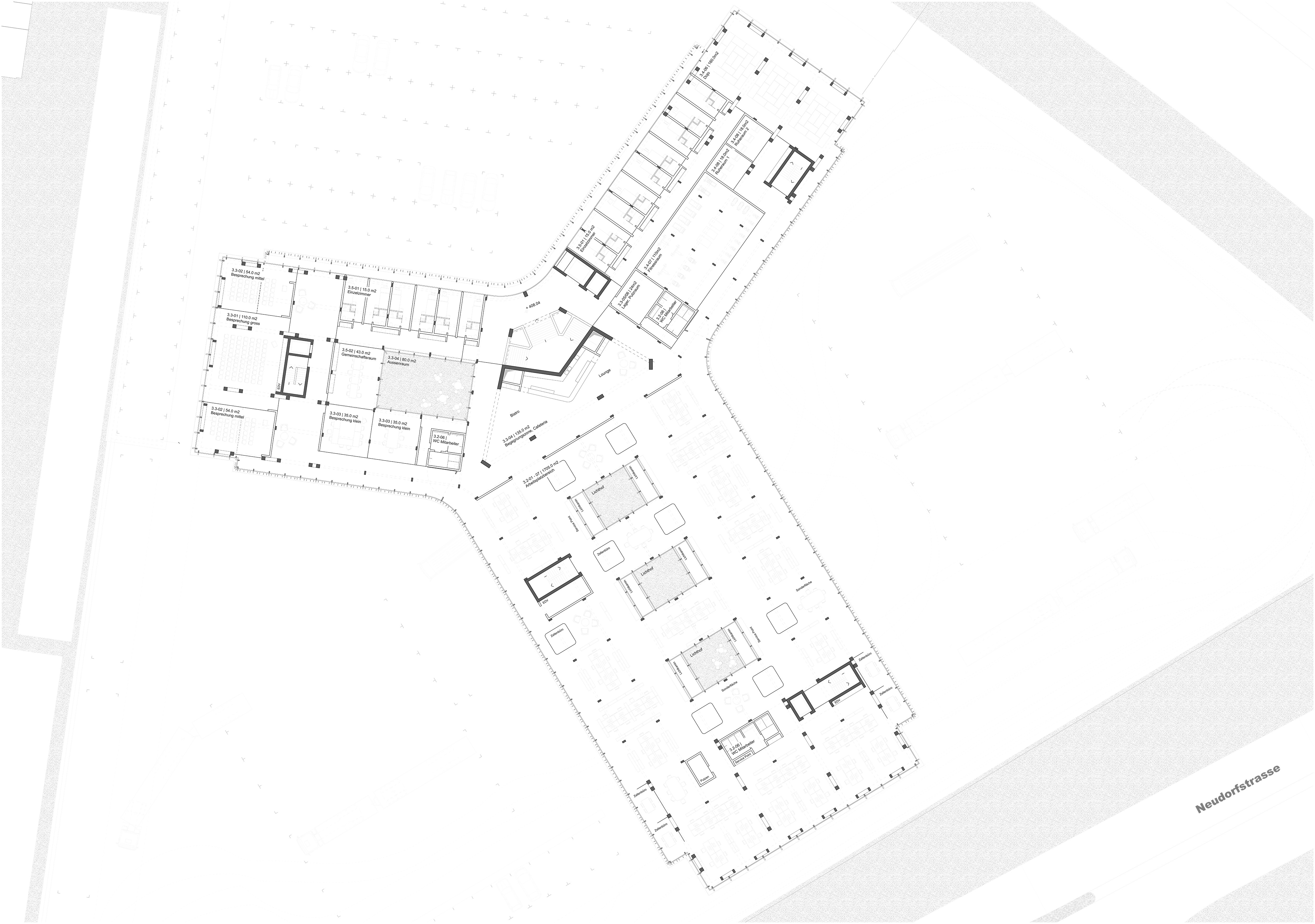
Neubau Interventionszentrum Zoll, St. Margrethen / Wettbewerb offen, 2021, 4. Preis
(Projekt schliessen)