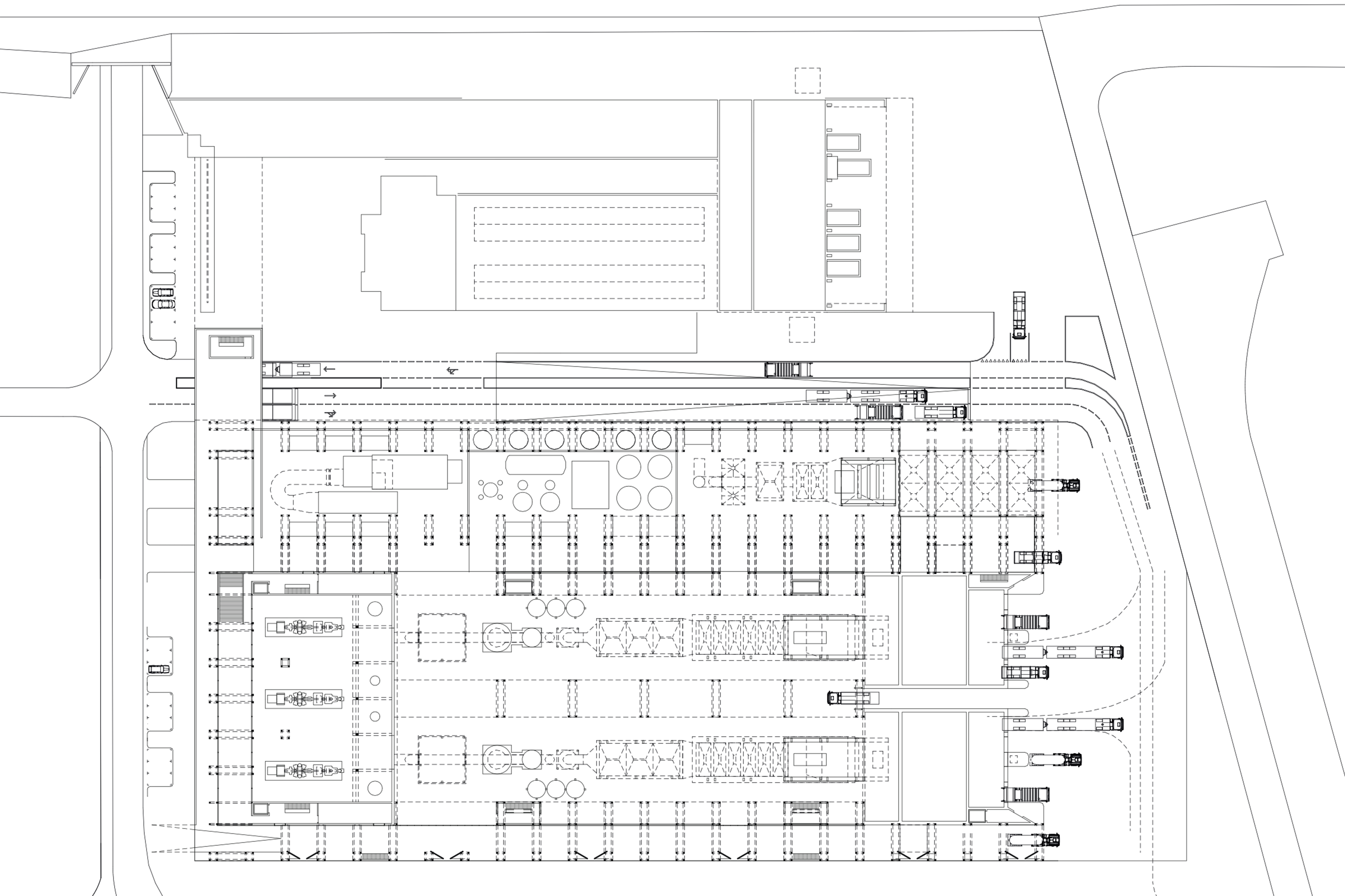
Die Studie für die neue Thurgauer Kehrrichtverbrennungsanlage im ehemaligen Kiesabbaugebiet von Weinfelden schlägt ein planerisches System vor, das die betrieblichen Anforderungen und die geforderten Bauvolumina in einen nachhaltigen Zusammenhang mit den landschaftsräumlichen und ökologischen Ansprüchen bringt. Dafür wird das Areal begrenzt und innerhalb des Bezirks unter Einbezug des Bestands eine räumliche Grundstruktur vorgeschlagen, die flexibel auf die technologischen Unsicherheiten und Etappierungen reagieren kann. Das Tragwerk ist über raumhaltige und selbstaussteifende Stahlpfeiler aufgebaut, sodass in modularen Schritten geplant und gebaut werden kann. Die Spannweiten werden möglichst eng gehalten und nur dort Ressourcen eingesetzt, wo diese auch wirklich gebraucht werden. Mit einer raumhaltigen Fassadenschicht, die der Erschliessung der Platzierung der Aussenaggregate dient, wird die Massivität der exorbitanten Volumina gebrochen und die Anlage auf kultivierte Weise in die Waldlandschaft eingebaut. Das hybride Bausystem zielt ausserhalb des Verbrennungsbunkers auf den konsequenten Einsatz von lokalen Bauweisen. Das Stahlgerüst der ungedämmten Halle wird mit Thurgauer Vollholz verkleidet. Wo es der Brandschutz erfordert, wird das Gerüst mit Lehmbausteinen ausgemauert. Die Dachfläche wird begrünt und auch für Besucher zugänglich gemacht. Die Energiezentrale des Kantons Thurgau wird damit zu einem Vorzeigeobjekt des zukünftigen Ökologiezeitalters.









