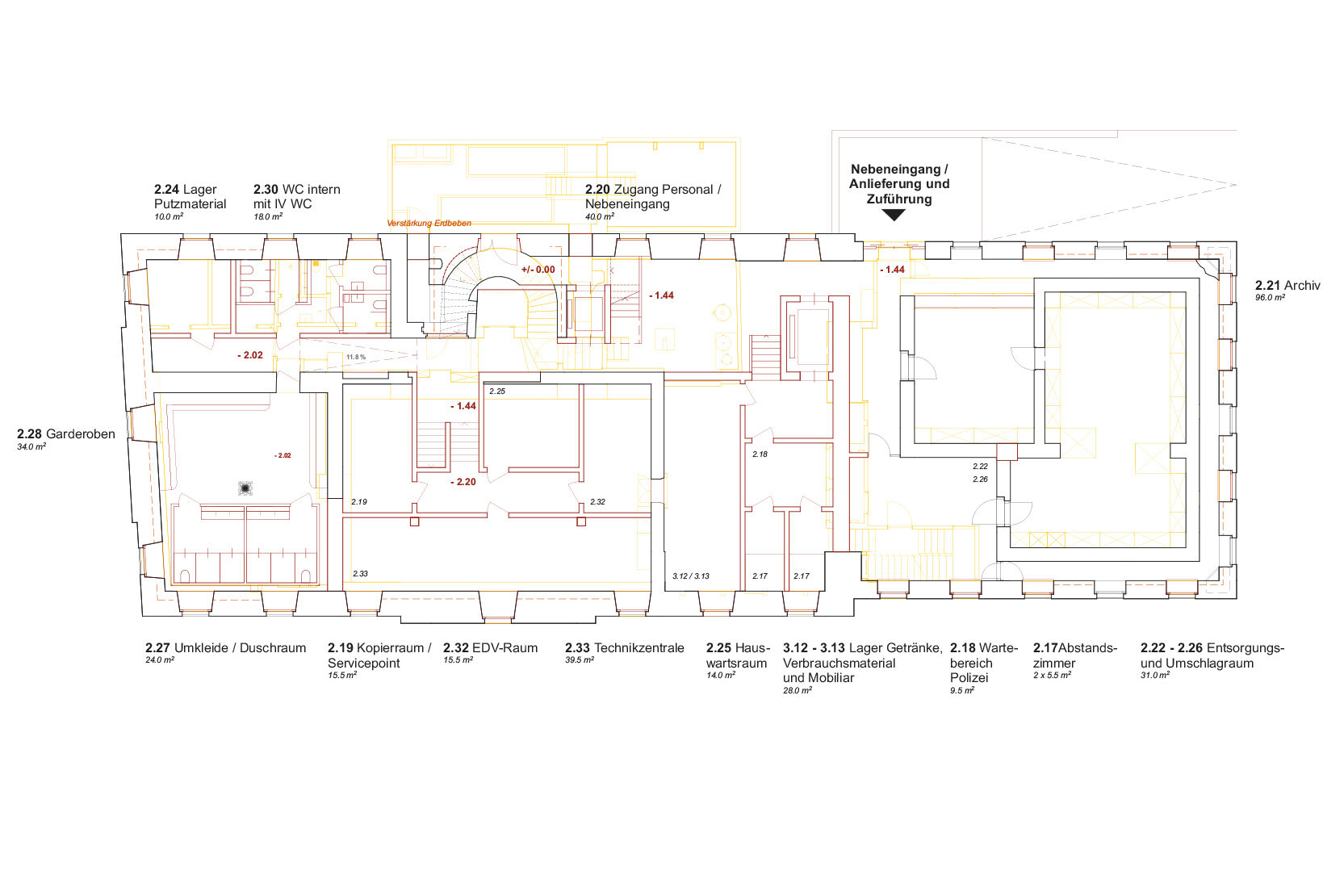
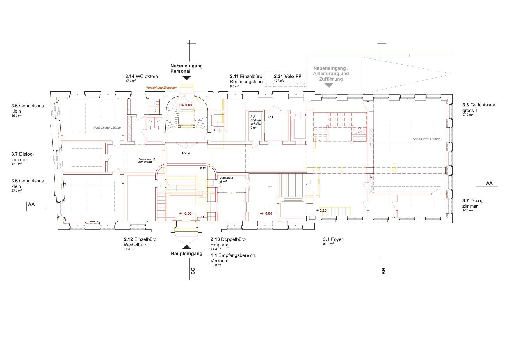
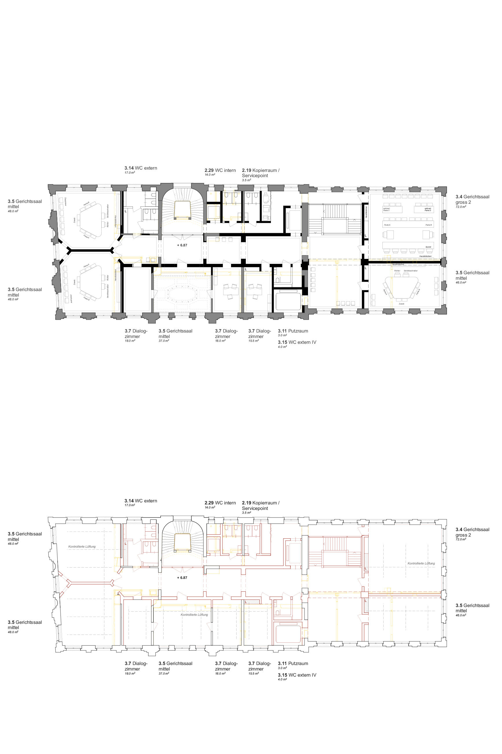
Das neue Kreisgericht des Kanton St. Gallen wird in den ehemaligen Hauptsitz der Kantonalbank eingebaut. Die beiden hohen Hauptgeschosse werden dabei für den Empfang und die gesicherte Zone mit den Gerichtssälen genutzt. In zwei Obergeschossen wird die Sicherheitszone mit den Arbeitsräumen für die Mitarbeitenden angelegt.
Das Projekt baut das historistische Gebäude weiter. Mit der Aufstockung des Bestands wird durch das Anheben des bestehenden Dachgesims eine neue kompositorische Einheit geschaffen, die in der Massstäblichkeit des Historismus einem Stadtpalais entspricht. Zwischen der Kolossalordnung und dem angehobenen Dach wird unter Einbezug bestehender Bauteile ein horizontal wirkendes «Mezzanin» geschaffen, das neu als vollwertiges Bürogeschoss dient.
Das in einer Spätrenaissance gehaltene Gebäudekonglomerat ist auf zeittypische Weise mit hybriden Konstruktionssystemen erbaut worden. Das Stammgebäude (1886) fusst auf einem Natursteinsockel und geht in den Obergeschossen in eine Backsteinstruktur mit eisenverstärkten Holzbalkendecken über. Die Fassade besteht aus einem Verbund von Natur- und Backstein. Der Erweiterungsbau (1918) wird durch eine Betonstruktur mit Rippendecken getragen, welche von einer selbsttragenden Natursteinhülle ummantelt ist. Das Projekt baut auf der hybriden Bauweise auf und verstärkt unter Berücksichtigung der originalen Grundriss-Typologie die bestehenden Strukturen.
Die Aufstockung erfolgt mit einem Holztragwerk, welches den Dachstuhl von 1958 wiederverwendet. Die Ummantelung erfolgt mit lokalem Sandstein (Rorschach, Teufen) und trägt auf die selbstragenden Natursteingewerke der unteren Geschosse ab. Mit möglichst leichten Verstärkungen und Bodenaufbauten (Scheibenwirkung Erdbebensicherheit) werden die aufwändigen Fundamentverstärkungen möglichst reduziert.
Im Innern wird auf der Basis des Bestands eine neue Innenwelt aufgebaut. Es wird vorgeschlagen, in Zusammenarbeit mit St.Galler Künstler:innen und Textilgestaltern zeitgenössische Konzepte für die Intérieurs zu entwickeln. Aus der Rekonstruktion des noch Vorhandenen heraus werden Reinterpretationen und Neuentwicklungen für die innere Tektonik und für die Gestaltung der aufgespannten Wandflächen vorgenommen. Damit erhält die Massstäblichkeit des Historismus auch im Innern wieder ihre Sinnfälligkeit.

















