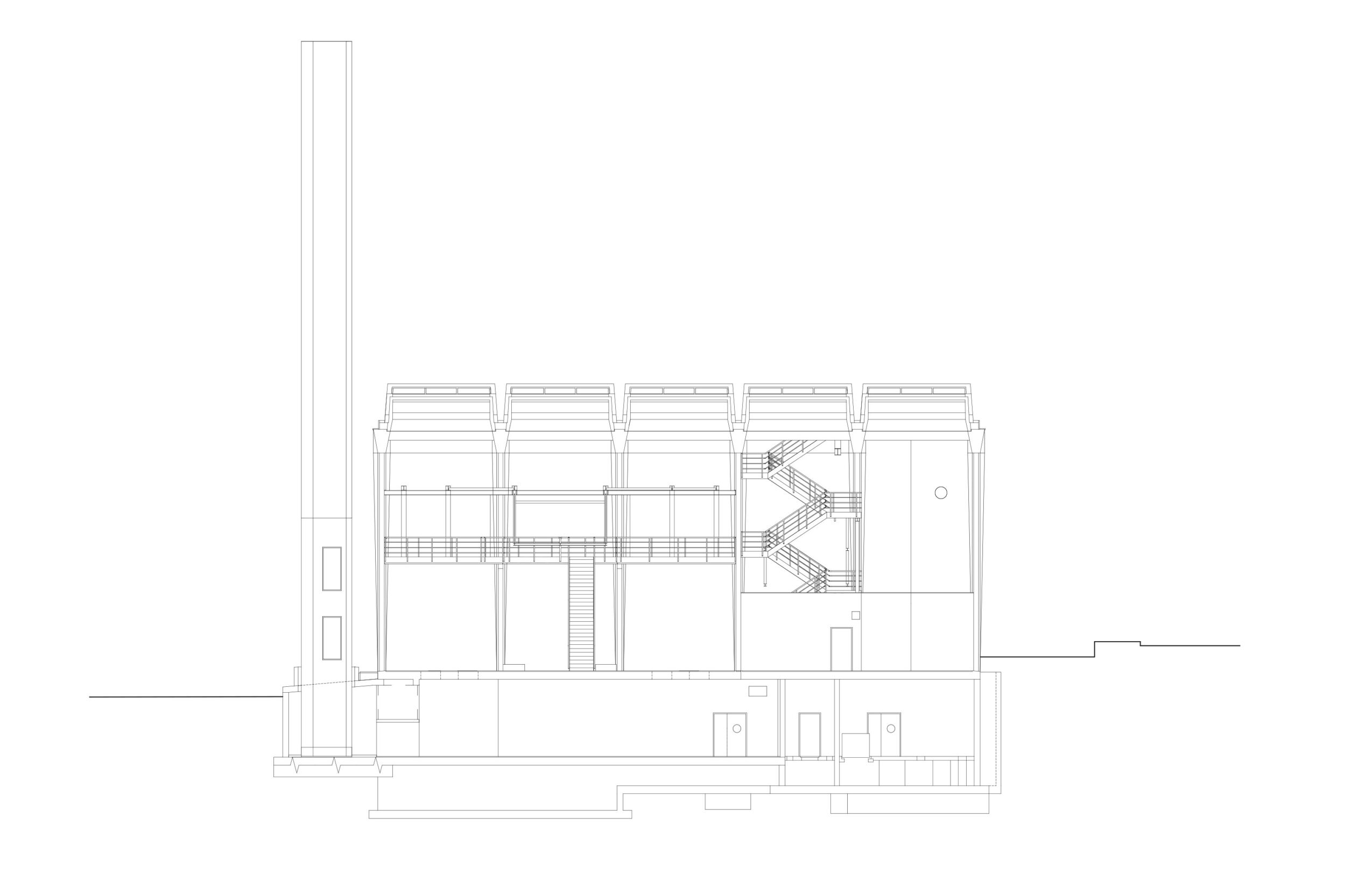
Die Fernwärmezentrale Lukasmühle ist die Spitzenlastzentrale für den östlichen Teil des St. Galler Fernwärmenetzes. Sie ist mit zwei Doppelflammkesseln und zwei Blockheizkraftwerk-Aggregaten bestückt. Das hoch installierte Gebäude wurde auf einem engen Restgrundstück zwischen Eisenbahn und Fussballfeld erstellt, sodass die Organisation der mehrstöckigen Untergeschosse und die damit zusammenhängende Baugrubenlogistik sehr anspruchsvoll waren. Der Hallenbau folgt dem Bausystem, das für die St. Galler Stadtwerke entwickelt worden ist. In der Lukasmühle liegt die Besonderheit bei den anspruchsvollen und eindrücklichen Einbauten aus Stahl, welche den technischen Unterhalt, die Medienführung und die Personensicherheit gewährleisten müssen. Für eine schlanke Gesamtwirkung der Kamine im städtischen Landschaftsraum ist eine spezifische Geometrie gezeichnet worden. Die beiden sechseckigen Stahlblechtürme übernehmen die Kaminstatik und fassen je drei Abgasrohre zusammen. Der untere Teil der Kaminstruktur wird für die Fassung der Zuluft nutzbar gemacht


























