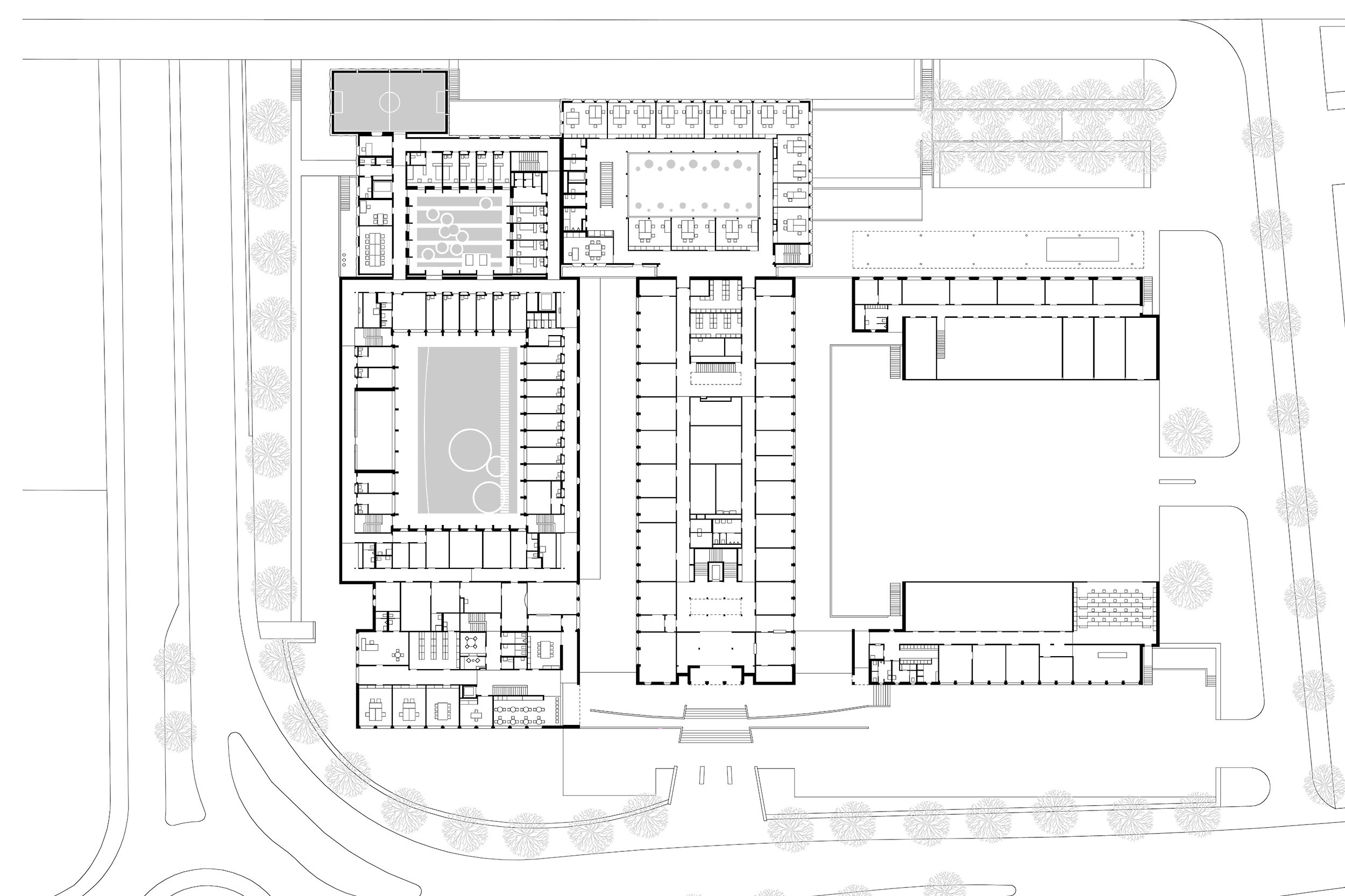
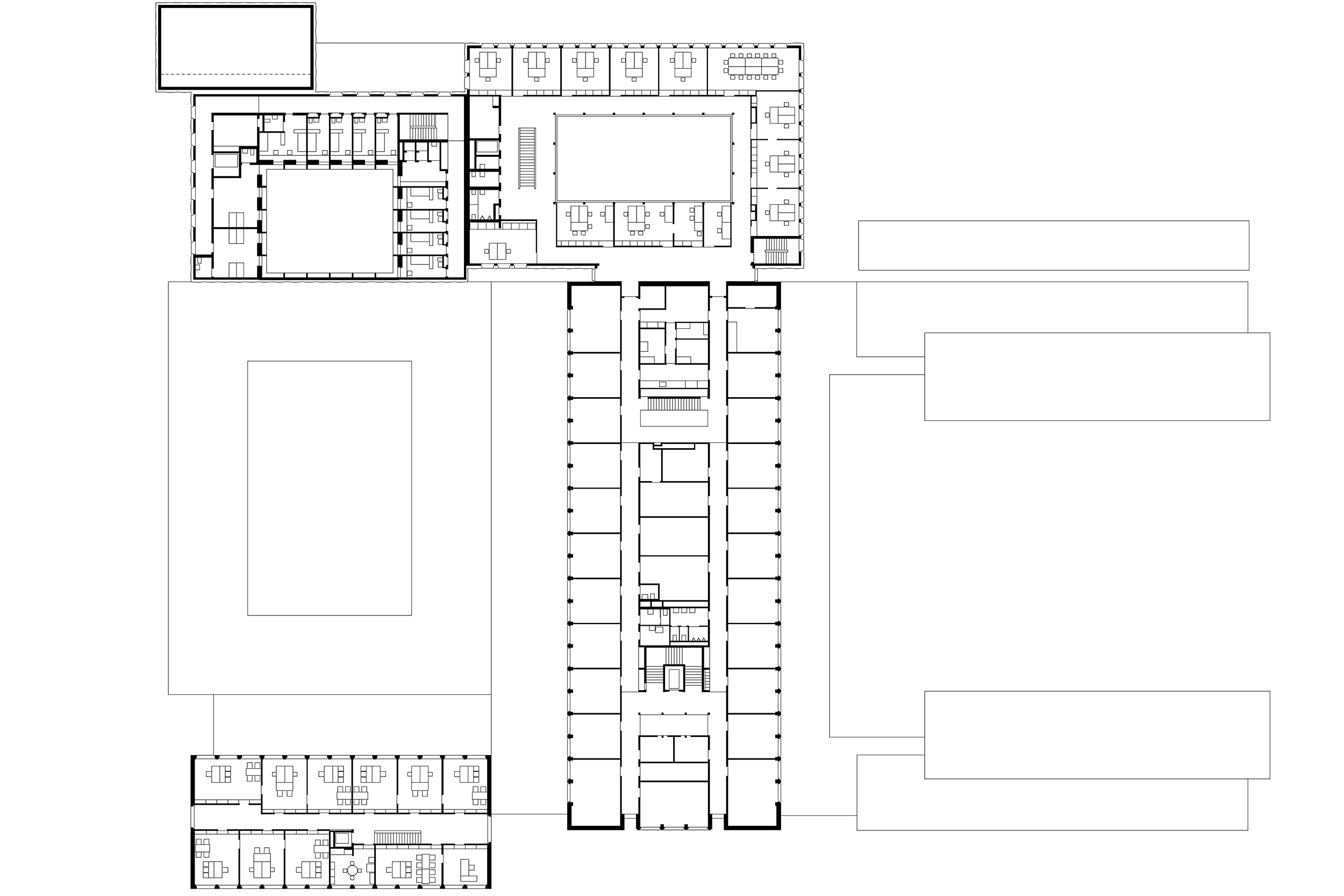
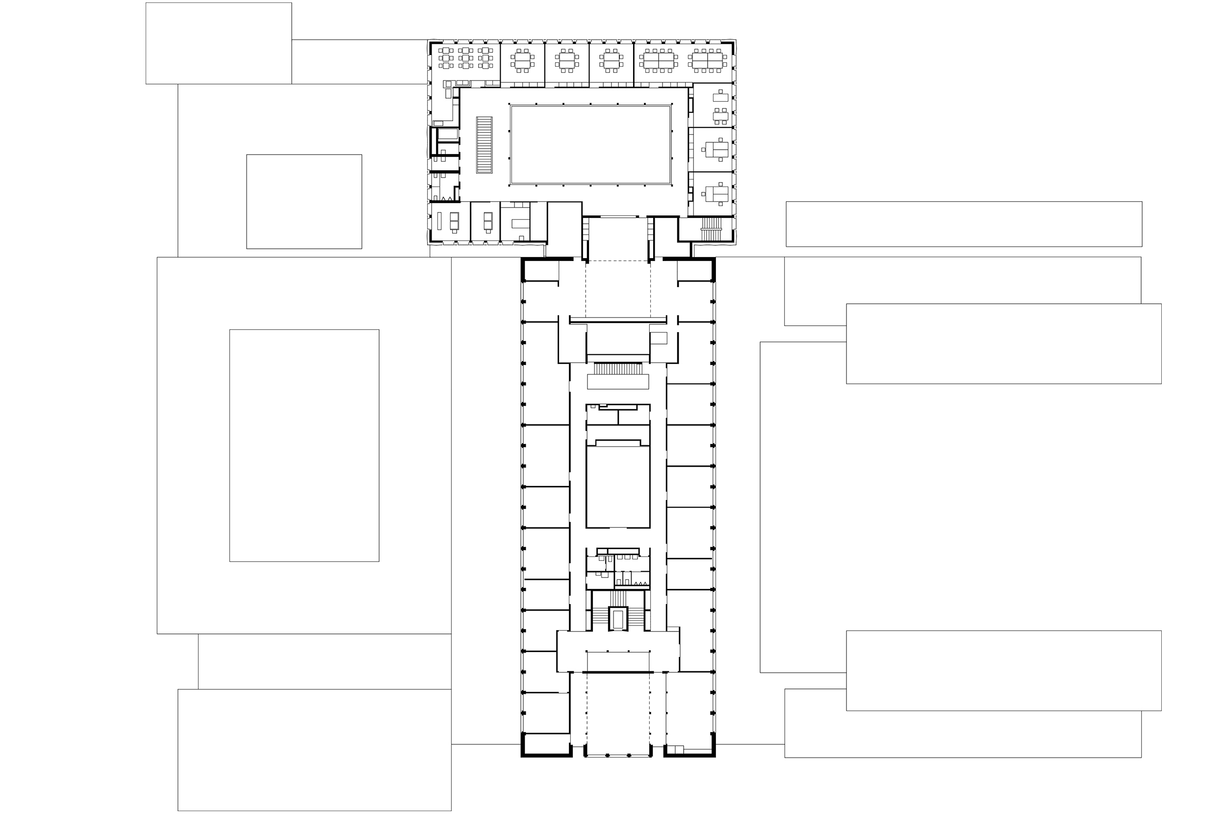
Das Justizzentrum des Kantons Thurgau liegt im Gewerbegebiet nahe an der Autobahnauffahrt. Die Erweiterung der Polizeibüros und der Zellenanlage erfolgt gegen Norden zu den Bahngleisen hin. Die drei Annexbauten mit der Polizei, dem Gefängnis- und dem Spazierhof schreiben das postmoderne Konglomerat der bestehenden Anlage weiter. Der begrünte Bürohof kann in den Pausen betreten werden und belichtet über eine grosszügig verglaste Fassade die Korridore der Polizei. Der Spazierhof des Gefängnisses ist mit einem Spielfeldbelag versehen und will als Sporthof ein möglichst positives Nutzungsszenario aufbauen. Der Gefängnishof versucht, mit einer dichten Begrünung über alle Jahreszeiten als vielschichtiger Gartenhof zu wirken. Gegen aussen nimmt die Kassettenfassade aus Kupfertitanzinkblech die Materialität des Gewerbegebiets auf. Mit einem tiefgezogenen Paneel wird für jedes Gebäudeteil eine spezifische Rhetorik entwickelt. Im Grau des Gewerbegebiets erhascht der Zugreisende die Bedeutung von Polizei, Gefängnis und Spazierhof.














