Im Team mit parbat Landschaftsarchitektur und Christian Meier Nachhaltigkeit gewinnen wir den Studienauftrag für die Weiterentwicklung der Villa Eichhorn in Romanshorn.
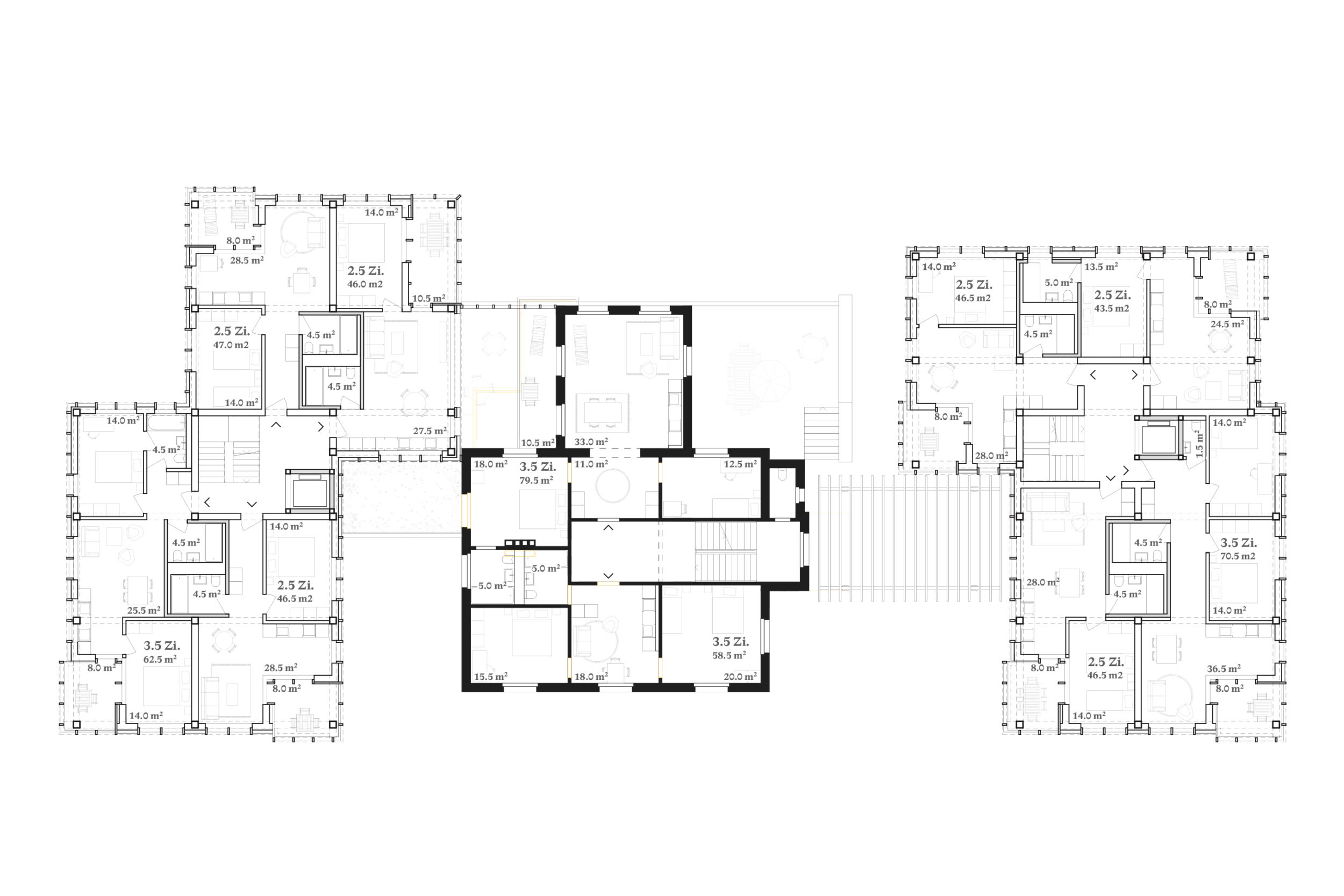
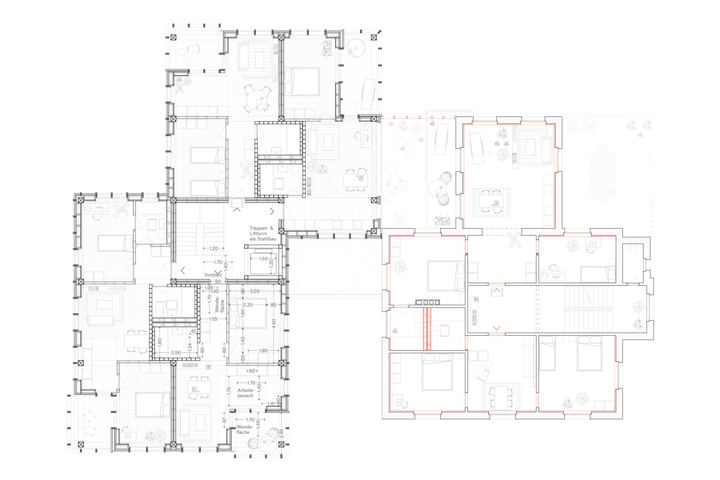
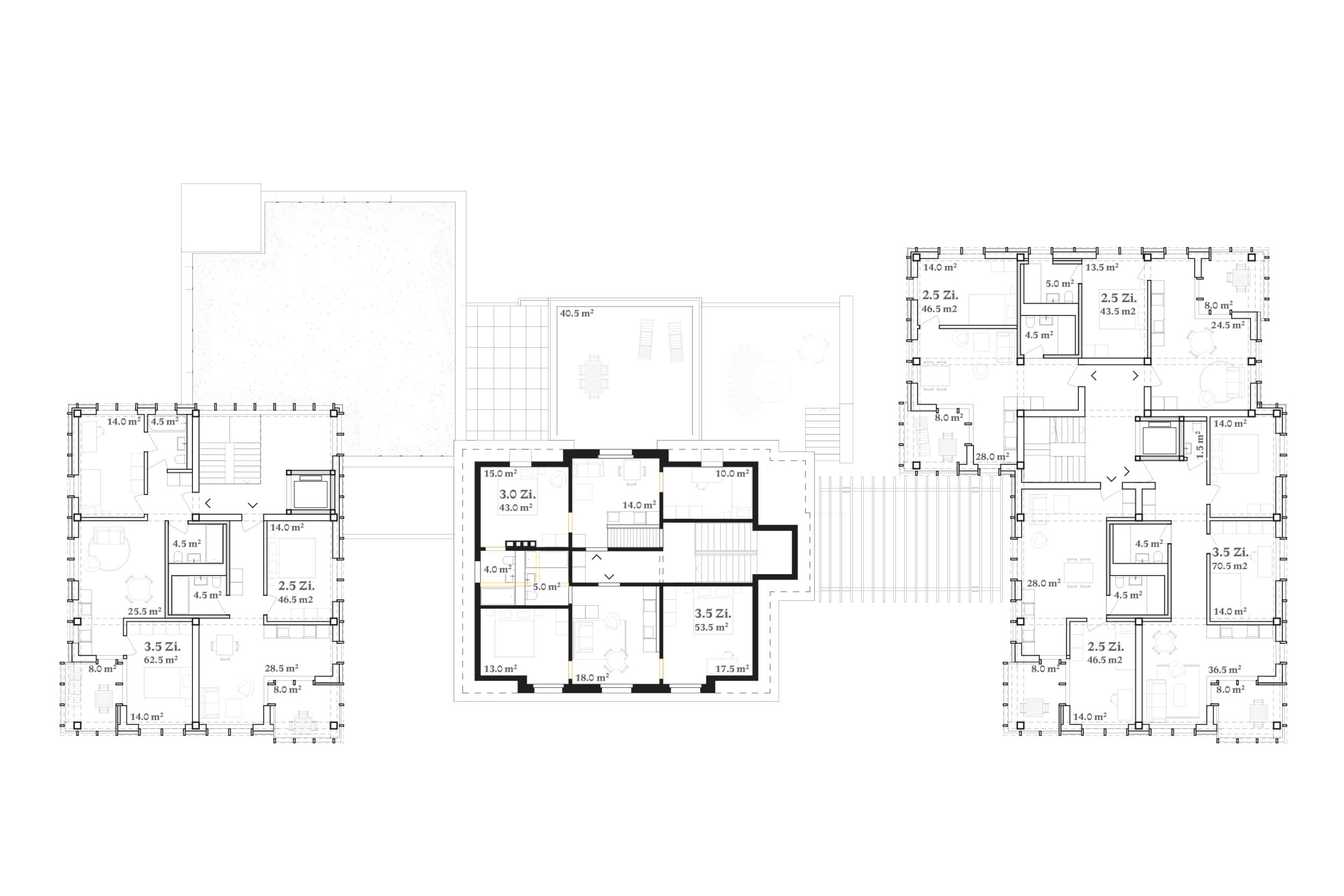
Die Edith Maryon AG will im Auftrag ihrer Stiftung mit einer ressourcenschonenden Bebauung das preisgünstige, gemeinschaftliche Wohnen im Alter fördern. Zwei Doppelhäuser bilden mit der Villa ein bauliches Ensemble, wobei der Westbau an die Villa anbaut.
Das Projekt Ardilla ist eine sozialräumliche Struktur, die sich auf ressourcenschonende Weise um die Villa Eichhorn baut. Mit 28 auf Suffizienz zielenden Wohnungen wird für über 50 Menschen ein neues Zuhause geschaffen. Im Hochparterre wird dabei mit dem Wintergarten, dem Salon und der Aussenterrasse eine schöne Raumfolge von Gemeinschaftsräumen mit Seesicht aufgebaut.
Das Ensemble ist so komponiert, dass der Park und die Vorgärten in ihrer gartenbauhistorisch bedeutsamen Typologie erhalten werden können.
Die Primärstruktur der beiden neuen Gebäudekörper besteht aus einem Holzskelett, in welches die Badezimmerkerne und auch die Treppenhäuser als eigenständige Konstruktionen eingebaut werden. Um diese herum entwickeln sich Wohnungen mit eigenen Loggia-Türmchen, welche der effizienten Systembauweise eine romantische Leichtigkeit einschreiben.















